米兰电竞

行业知识

立磨减速机损坏故障分析

2022-04-18 11:00:18 米兰电竞-最专业的电子竞技门户

立磨减速机损坏故障分析



故障描述:减速机磨盘与行星转架固定螺丝全部断裂,转架下沉,运转噪音,震动,温度超标,主电机电流波动。


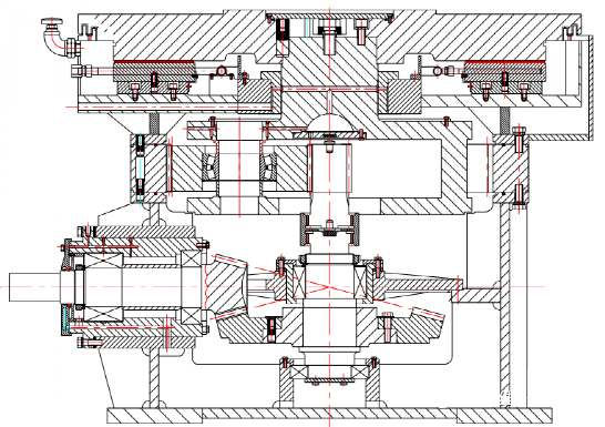
结构图:

图片关键词


1.该减速机打开磨盘防尘盖,发现内部螺丝全部断裂,该螺丝12.9级,是连接磨盘与行星转架的关键部件。


2.减速机为外置低压稀油站润滑,机子拆开后,检测润滑油严重失效,发黑,粘度降低,内部铁粉沉积严重。


3.润滑油上仓内部有工具异物(应是上次维修所留)


4.内部喷油管大量堵塞


5.瓦面研磨损伤


6.太阳轮齿面损坏,上部靠近球顶位置严重。


7.内此套齿面损坏


8.鼓型齿齿面损坏


9.箱体磨损损伤


10.注油管磨损


11.所有轴承全部研磨损伤。


图一

图片关键词

图片关键词

图二

图片关键词

图片关键词

图三

图片关键词

图四

图片关键词

图五

图片关键词

图六

图片关键词

图片关键词

图七

图片关键词

图片关键词

图八

图片关键词

图九

图片关键词

原因分析:


问题一:大面积损害原因。


从损坏情况分析,该减速机磨盘和减速机行星转架固定螺丝断裂时间与减速机故障停机时间,存在较长间隔。推断分析应该在3个月左右-或半年以上时间。减速机磨盘与转架固定螺丝断裂以后,转架下沉,导致太阳轮两端球顶出力,球顶研磨消耗以后,大量大颗粒掉落损坏太阳轮齿面,行星轮齿面,齿圈齿面,球顶研磨继续消耗,位置越来越低,行星轮下端跑出齿圈啮合范围,向下直接研磨箱体,产生大量铁粉,这也就是图片中减速机上仓铁粉沉淀1CM多的原因。转架继续向下,研磨范围越来越大,阻力越来越强,同时,随着齿面的不断恶化,噪音,震动,温度,电机电流,越来越大,只能故障停机检修,


推断这台减速机应该在初期产生问题时,客户没有及时停机检修,又坚持使用了一段时间,不得已才停的机,按照铁粉量的产出,客户的稀油站滤芯应该早已失效,或者直接拔出未装。不然,油站都无法正常使用。


问题二:该减速机磨盘和减速机行星转架固定螺丝为什么断裂。


根据减速机内部照片与内部损坏零件分析,无任何异常情况。那么,推断减速机外部情况,我们可以推断假设几种可能产生的原因,一起讨论分析。


1.磨盘总成存在震动,或波形冲击。


2.停机前三个月左右,磨辊有严重损坏情况记录。


3.停机前三个月左右,磨仓内有排渣异常停机记录。


4.磨盘与减速机连接松动,产生夹角。


5.减速机基础底板变形,或地脚螺栓松动。(找正基础底板的平行度,使之符合 0.05mm/m 的平行度要求。)


上述分析总结就是磨机异常导致的减速机损坏。


下面提醒一下,因此机还需投入运行,那么,与此机配套的低压润滑稀油站,就必须彻底清洁,冲洗所有管道,注入新油后才能使用,下面是减速机的冲洗步骤,可以参考一下。


减速机在长期存放或长期待机后,如要重新启动,需注意在正式启动前,一定要对减速机进行窜油冲洗,具体要求如下,


减速机润滑系统的清洁度是十分重要的,运转前必须进行串油清洗。接好稀油站与减 速机之间的进油管和回油管,向油箱内注入其容积约 60%的 N320 或 N220 工业闭式齿轮油, 在稀油站低压法兰处放置铜滤网。


清洗前,将清洗油加热到 50℃(开通旁路阀并关闭出油口阀门,使油在油箱内自循 环,以防加热时结碳),然后打开出油阀,关闭旁路阀,启动油站串油。


清洗过程中,开始每小时检查并清洗一次磁过滤器和双联过滤器滤网。4 小时后每 隔两小时检查一次,串油 12 小时并确认没有杂物后,停止冲洗。拆下稀油站出油口处安放 的铜滤网并清洗干净后放回原处。拧紧螺栓,继续进行串油清洗,直到安放的铜滤网确认无 杂物后,此项工作才可结束。



TAG: 减速机
米兰电竞
产品
新闻
联系